Santa Barbara
Pictures:
Exterior Features:
- Mediterranean style concrete tile roof.
- Decorator exterior color schemes and textured finish.
- Brick paver driveway, walkway to home, covered entry and covered rear terrace.
- Climate-friendly covered entry with dramatic 8 doors.
- Distinctive exterior door hardware and deadbolt lock.
- Lighting at front entry porch.
- Decorative coach lights at garage.
- Impact-resistant garage doors.
- Covered rear terrace pre-wired for ceiling fan.
- Impact-resistant second floor windows.
- Second floor hurricane code compliant concrete block construction.
- Front and rear weatherproof (GFI) electric outlets.
- Professionally landscaped and sodded home site.
- Automatic sprinkler system.
- Distinctive mailbox design.
- Front and rear hose bibs.
- Steel-reinforced concrete foundation.
- Termite treated foundation.
- Vented soffits.
- Screens on all operable windows.
Interior Features:
- Elegant 12 raised flat ceilings in single-story home living areas.
- Two-story homes feature 10-10 ceilings on the first floor and 9-5 ceilings on the second floors (per plan).
- Dramatic coffered ceiling in master suite, dining room or great room (per plan).
- Textured finish walls and ceilings throughout (excluding baths).
- 8 tall single light French doors.
- 8 raised panel interior doors.
- 8 raised panel closet doors.
- Decorator door hardware throughout.
- Decorative 3 1/4 wood door casings.
- Oversized 5 1/4 wood baseboards.
- 18 x 18 ceramic tile flooring in foyer, family room, kitchen, breakfast nook and laundry room.
- Second floor cementitious overlayment.
- Deluxe wall-to-wall carpeting with upgrade padding in all non-tiled areas.
- Minimum 200 AMP electrical service.
- High-efficiency air conditioning system.
- Air-conditioned baths, laundry rooms and walk-in closets.
- Energy-efficient R-11 garage wall insulation.
- Energy-efficient R-30 ceiling insulation (per plan).
- Quick-recovery 80 gallon hot water heater.
- Fluorescent light fixtures in walk-in closets, laundry room and garage.
- Rocker-style electrical switches.
- Vinyl-clad ventilated closet shelving.
- Marble windowsills throughout.
- Smoke and carbon monoxide detectors (per plan).
- Structured wiring system includes wiring that homeruns to a central distribution panel.
- All phone wiring is Category-5 cable and is included in the kitchen, family room, loft (where applicable) and all bedrooms.
- Pre-wired for ceiling fans at family room, all bedrooms, covered rear lanai and loft (where applicable).
- Pre-wired for garage door opener.
- Full-sized washer and dryer.
- Upper cabinets in laundry room.
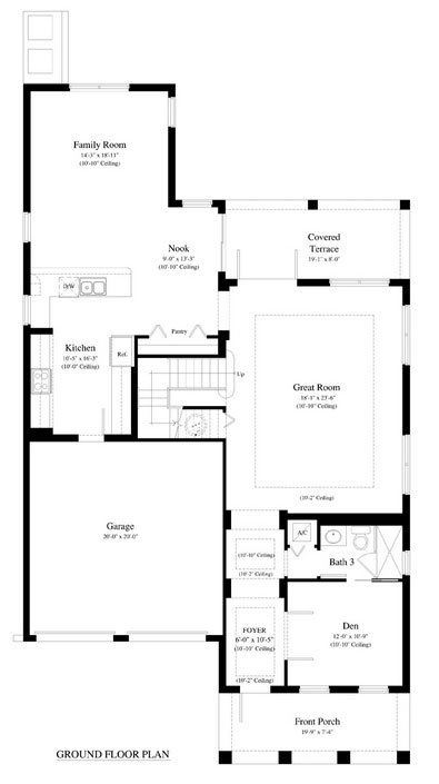
Floor PLan:
Prices:
| Type | Sqft. | Price |
| Anacapa 3/2.5 - 2 Car Garage | 2.743 | From $435.990 |
| Chapala 3/3 + DEN - 2 Car Garage | 3.000 | From $473.990 |
| Montecito 3/3 + DEN - 2 Car Garage | 3.614 | From $483.990 |
| Tortuga 3/3 (or 4/4) - 2 or 3 Car Garage | 4.172 | From $522.990 |


















